Проект коттеджа К-024

Выполняем весь спектр строительных работ.
От эскизного проекта до готового объекта!
100 м2
22 000 р.
Цена без скидки: 25 000 р.
Двухэтажный коттедж с летней верандой. Несмотря на свои небольшие размеры, имеет удобную планировку позволяющую жить комфортно, построив свой дом даже не небольшом земельном участке.
Подробнее
Заказать расчет стоимости Задать вопрос
Строим дома высокого качества
Просторные гостиные
Отличная планировка

Описание


Представляем вам новый типовой проект дома – комфортабельный коттедж, небольшие размеры которого, позволят жить комфортно, построив свой дом даже не небольшом земельном участке.

На первом этаже дома предусмотрена гостиная, уютная кухня с отдельным выходом на террасу. Предусмотрено два отдельных выхода с противоположных сторон дома, чтобы повысить удобство в эксплуатации. 

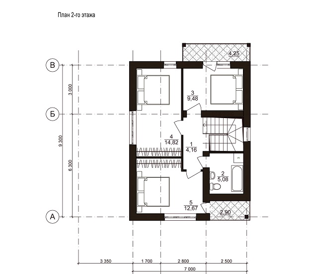
На втором этаже расположены три спальных комнаты, две из которых имеют выходы на балконы. Имеется просторная ванная комната позволяющая разместить в ней всё необходимое оборудование.


Отличительные особенности:
  • Надежность: проект разработан для IIIБ климатического района и сейсмичностью площадки строительства 7 баллов. 
  • Улучшенная планировка: 2 этажа, 4 комнаты, 2 входа – парадный и черный, 2 балкона, сан. узлы на каждом этаже.
  • Фундаменты: монолитный ростверк толщиной 400 мм по буронабивным сваям диаметром 350мм, глубиной 2,0-3,0м. Заглубление ростверка - на 100 мм ниже отмостки. 
  • Наружные стены двухслойные с внутренним несущим слоем из кирпича, толщиной 380 мм. и наружным слоем из утеплителя - менераловатные плиты, толщиной 50 мм с тонкой штукатуркой, перегородки из кирпича толщиной 120 мм. 
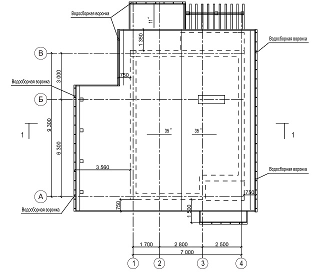
  • Кровля скатная, покрытая металлочерепицей, с организованным водоотводом по желобам и водосточным трубам на отмостку здания. 

Планировки

План 1 этажа
План 2 этажа
План кровли

Характеристики

Площадь 100  м2
Этажей 2
Жилая площадь 62  м2
Площадь кухни 12,5  м2
Терраса 20  м2
Гараж нет
Количество спален 3
Назначение жилые дома от 50 м2 до 100 м2

Документы

Смета строительства Размер: 29 байт

Галерея

Заказать расчет стоимости
Оформите заявку на сайте, мы свяжемся с вами в ближайшее время и ответим на все интересующие вопросы.

Дома, построенные по этому проекту